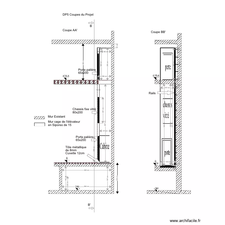
DP5 Coupe BB cave
Plan de

Détails du plan
- Plan commencé le 10/12/2019 à 13:48 par bsversailles
- Modifié le 10/12/2019 à 15:18 par bsversailles
- Partage : Utilisation
Mots clés
Liste des pièces
Aucune pièce n'a été créé sur ce plan.
Lien vers ce plan
Lien pour partager le plan DP5 Coupe BB cave
Image du plan
Copier et coller le code ci dessous
Partagez ce plan
Vous aimez ce plan ?
Cliquez sur J'aime et gagnez des fonctionnalités