CUISINE TTVK
Plan de

Détails du plan
- Plan commencé le 03/12/2022 à 19:07 par Tahiti.pf
- Modifié le 17/12/2022 à 01:26 par Tahiti.pf
- Partage : Utilisation
Mots clés
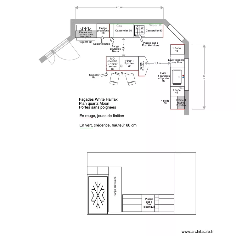
Liste des pièces
Aucune pièce n'a été créé sur ce plan.
Liste des objets
| Nom de l'objet | Nombre |
|---|---|
| Texte | 27 |
| Bar | 35 |
| Boite de dérivation | 1 |
| Cercle | 2 |
| Chaise haute bar | 2 |
| Evier 1 vasque | 1 |
| Flêche | 4 |
| Plaque gaz | 1 |
| Prise | 4 |
| Réfrigérateur | 2 |
Lien vers ce plan
Lien pour partager le plan CUISINE TTVK
Image du plan
Copier et coller le code ci dessous
Partagez ce plan
Vous aimez ce plan ?
Cliquez sur J'aime et gagnez des fonctionnalités