EIFFAGE CHANTIER LYON 2
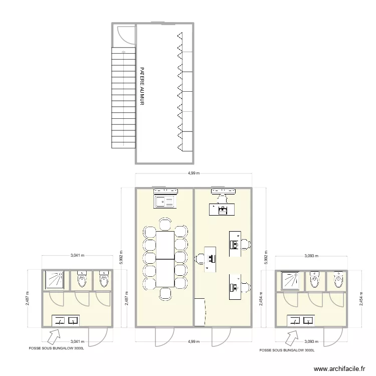
Plan de 10 et 42 m²

Détails du plan
- Plan commencé le 21/01/2026 à 10:42 par aca69780
- Modifié le 12/02/2026 à 16:58 par aca69780
- Partage : Utilisation
Mots clés
Liste des pièces
Liste des objets
| Nom de l'objet | Nombre |
|---|---|
| Texte | 3 |
| Armoire portes battantes | 1 |
| Armoire portes pliantes | 6 |
| Bureau 100 X 50 cm | 4 |
| Chaise | 12 |
| Climatiseur Split interieur | 2 |
| Escalier droit | 1 |
| Évier 1 bac avec meuble | 1 |
| Flêche | 2 |
| Meuble 2 lavabos | 2 |
| Receveur douche | 2 |
| Table de bureau | 2 |
| WC standard | 4 |
Lien vers ce plan
Lien pour partager le plan EIFFAGE CHANTIER LYON 2
Image du plan
Copier et coller le code ci dessous
Partagez ce plan
Vous aimez ce plan ?
Cliquez sur J'aime et gagnez des fonctionnalités
Plans de 10 pièces et de 35 à 45 m2
Voir tout les plans de 10 pièces et de 35 à 45 m2
Plans de 10 pièces
Voir tout les plans de 10 pièces
Plans de 35 à 45 m2
Voir tout les plans de 35 à 45 m2