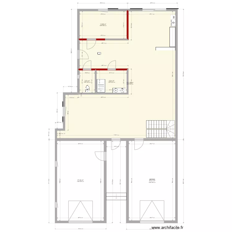
HASNON 3 RDC avec etage
Plan de

Description
Création 2 appartements
Détails du plan
- Plan commencé le 03/01/2021 à 13:11 par Hasnon83
- Modifié le 22/05/2021 à 12:13 par Hasnon83
- Partage : Lecture
Mots clés
Liste des pièces
Aucune pièce n'a été créé sur ce plan.
Liste des objets
| Nom de l'objet | Nombre |
|---|---|
| Escalier demi tournant | 1 |
| Escalier droit | 1 |
| Etagère redimenssionnable | 2 |
| Évier 2 bacs | 1 |
| Lave main | 1 |
| Meuble 2 vasques | 1 |
| Receveur douche | 1 |
| WC standard | 1 |
Lien vers ce plan
Lien pour partager le plan HASNON 3 RDC avec etage
Image du plan
Copier et coller le code ci dessous
Partagez ce plan
Vous aimez ce plan ?
Cliquez sur J'aime et gagnez des fonctionnalités