condeon 2 etage1 V 3 81118
Plan de

Description
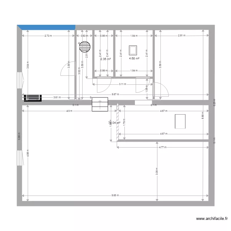
RAJOUT DES FENETRES ET PORTES, CHEMINEE DANS CHAMBRE. REJOUTUNE PIECE AVEC VELUX. LARG 2 M LONG 4.2 M
Détails du plan
- Plan commencé le 08/11/2018 à 11:05 par beaufordcondeon
- Modifié le 06/04/2019 à 16:28 par beaufordcondeon
- Partage : Utilisation
Mots clés
Liste des pièces
Aucune pièce n'a été créé sur ce plan.
Liste des objets
| Nom de l'objet | Nombre |
|---|---|
| Chauffe eau - Cumulus | 1 |
| Cheminée | 1 |
| Escalier droit | 1 |
| Fenêtre 1 vantail | 1 |
Lien vers ce plan
Lien pour partager le plan condeon 2 etage1 V 3 81118
Image du plan
Copier et coller le code ci dessous
Partagez ce plan
Vous aimez ce plan ?
Cliquez sur J'aime et gagnez des fonctionnalités