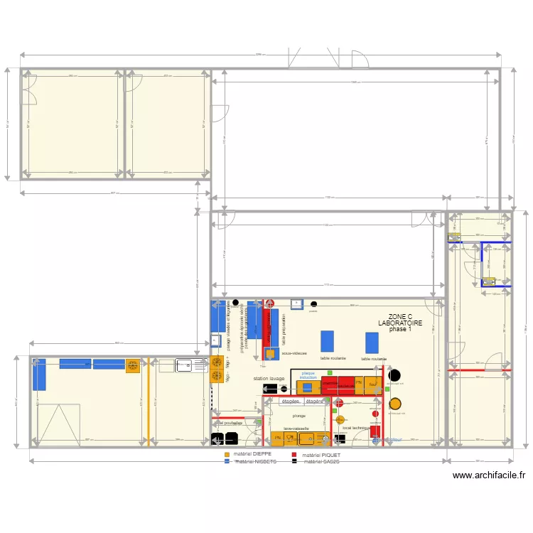
plan ensemble disposition locaux et équipements 140319
Plan de

Description
création laboratoire
Détails du plan
- Plan commencé le 14/03/2019 à 18:57 par GOURYX
- Modifié le 15/03/2019 à 19:30 par GOURYX
- Partage : Lecture
Mots clés
Liste des pièces
Aucune pièce n'a été créé sur ce plan.
Liste des objets
| Nom de l'objet | Nombre |
|---|---|
| Texte | 39 |
| Bar | 25 |
| Caisson à tiroir | 6 |
| Cercle | 4 |
| Chaudière à Gaz | 1 |
| Chauffe eau | 1 |
| Compteur d'eau | 1 |
| Évier 1 bac | 2 |
| Evier 1 vasque | 2 |
| Lave main | 2 |
| Lave vaisselle 9 couverts | 1 |
| Poubelle | 6 |
| Poubelle | 2 |
| Rectangle | 5 |
| Refrigerateur congelateur | 3 |
Lien vers ce plan
Lien pour partager le plan plan ensemble disposition locaux et équipements 140319
Image du plan
Copier et coller le code ci dessous
Partagez ce plan
Vous aimez ce plan ?
Cliquez sur J'aime et gagnez des fonctionnalités