studio
Plan de

Description
Projet studio moderne
Détails du plan
- Plan commencé le 13/07/2018 à 21:56 par Chance NGUIMBI
- Modifié le 08/11/2018 à 03:45 par Chance NGUIMBI
- Partage : Utilisation
Mots clés
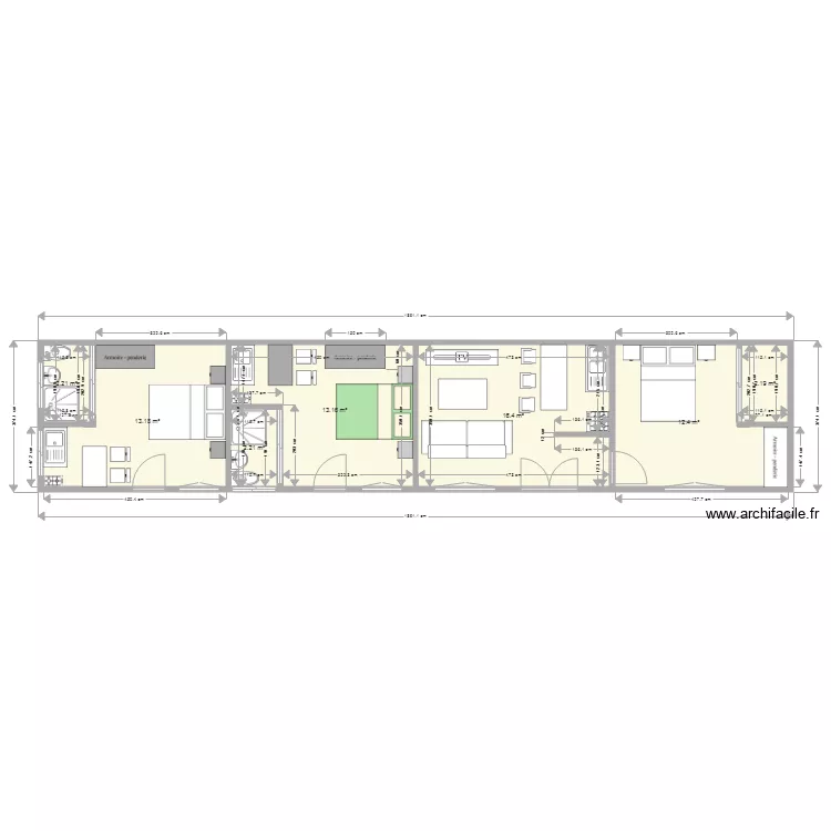
Liste des pièces
Aucune pièce n'a été créé sur ce plan.
Liste des objets
| Nom de l'objet | Nombre |
|---|---|
| Armoire - penderie 150 cm | 3 |
| Bar | 3 |
| Canapé 3 places | 1 |
| Chaise haute bar | 4 |
| Chaise haute bar | 3 |
| Évier 1 bac avec meuble | 2 |
| Évier 2 bacs avec meuble | 1 |
| Lavabo | 2 |
| Lit double standard | 3 |
| Plaque gaz | 1 |
| Plaque gaz 2 foyers | 2 |
| Receveur douche | 2 |
| Table basse | 1 |
| Table de chevet | 6 |
| Téléviseur avec meuble bas | 1 |
| WC standard | 2 |
Lien vers ce plan
Lien pour partager le plan studio
Image du plan
Copier et coller le code ci dessous
Partagez ce plan
Vous aimez ce plan ?
Cliquez sur J'aime et gagnez des fonctionnalités