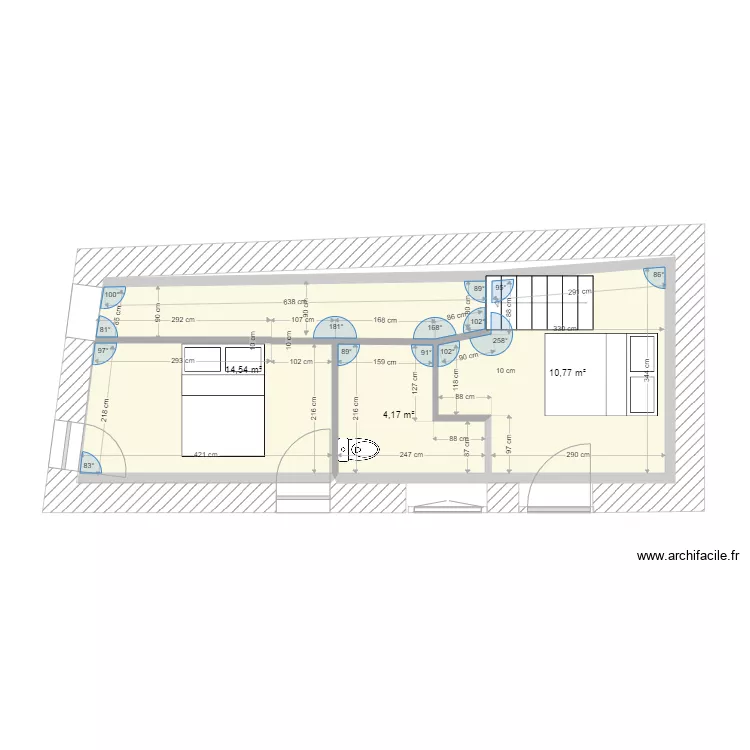
Rdc annexe 1ere idee
Plan de

Détails du plan
- Plan commencé le 16/11/2021 à 23:52 par cdpdm
- Modifié le 16/11/2021 à 23:52 par cdpdm
- Partage : Utilisation
Mots clés
Liste des pièces
Aucune pièce n'a été créé sur ce plan.
Liste des objets
| Nom de l'objet | Nombre |
|---|---|
| Escalier droit | 1 |
| Lit double standard | 2 |
| WC standard | 1 |
Lien vers ce plan
Lien pour partager le plan Rdc annexe 1ere idee
Image du plan
Copier et coller le code ci dessous
Partagez ce plan
Vous aimez ce plan ?
Cliquez sur J'aime et gagnez des fonctionnalités