Bellariva Vincenza plan
Plan de

Détails du plan
- Plan commencé le 05/02/2021 à 11:23 par Metin84
- Modifié le 05/02/2021 à 15:01 par Metin84
- Partage : Utilisation
Mots clés
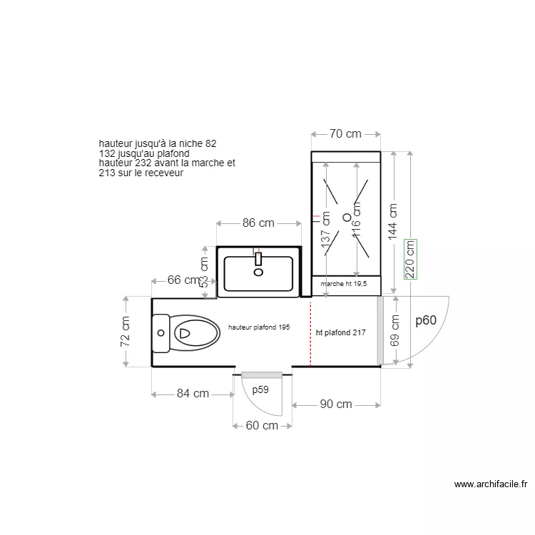
Liste des pièces
Aucune pièce n'a été créé sur ce plan.
Liste des objets
| Nom de l'objet | Nombre |
|---|---|
| Texte | 6 |
| arrivée d'eau | 2 |
| Meuble 1 lavabo integré | 1 |
| Receveur douche extra plat | 1 |
| Rectangle | 1 |
| WC standard | 1 |
Lien vers ce plan
Lien pour partager le plan Bellariva Vincenza plan
Image du plan
Copier et coller le code ci dessous
Partagez ce plan
Vous aimez ce plan ?
Cliquez sur J'aime et gagnez des fonctionnalités