Plan placo
Plan de

Description
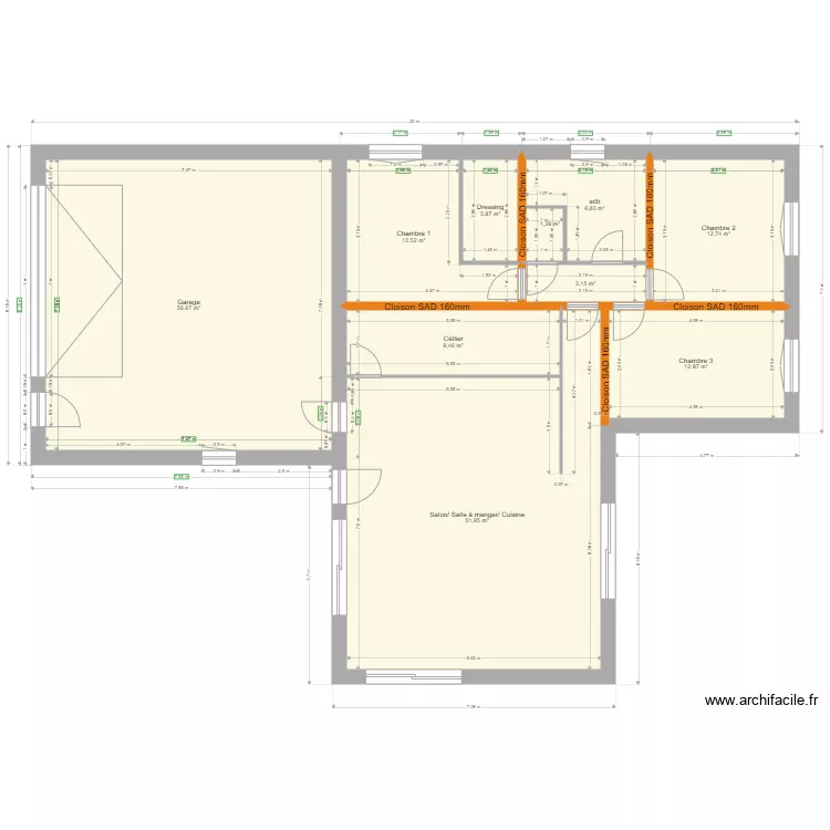
maison en aglo de 20 isolation de 180 mur extérieur, separation cloison placo intérieur isophonic 180 et placo standard 7
Détails du plan
- Plan commencé le 04/05/2022 à 21:13 par cam78
- Modifié le 30/01/2024 à 15:09 par cam78
- Partage : Utilisation
Mots clés
Liste des pièces
Aucune pièce n'a été créé sur ce plan.
Liste des objets
| Nom de l'objet | Nombre |
|---|---|
| Texte | 5 |
Lien vers ce plan
Lien pour partager le plan Plan placo
Image du plan
Copier et coller le code ci dessous
Partagez ce plan
Vous aimez ce plan ?
Cliquez sur J'aime et gagnez des fonctionnalités