Projet aménagement grenier
Plan de

Détails du plan
- Plan commencé le 31/01/2017 à 17:38 par denis64
- Modifié le 22/02/2017 à 17:46 par denis64
- Partage : Utilisation
Mots clés
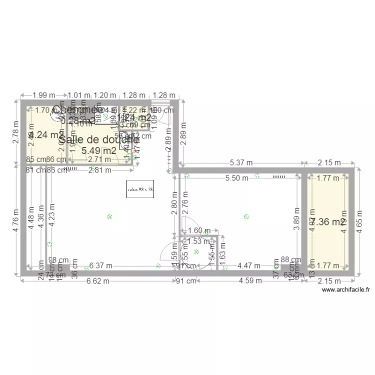
Liste des pièces
Aucune pièce n'a été créé sur ce plan.
Liste des objets
| Nom de l'objet | Nombre |
|---|---|
| Chauffe eau | 1 |
| Eclairage plafond | 7 |
| Meuble lavabo intégré | 1 |
| Prise | 12 |
| Prise four | 1 |
| Prise lave linge | 1 |
| Prise plaque de cuisson | 1 |
| Radiateur à inertie 2000W | 3 |
| Receveur douche | 1 |
| Sèche-serviettes électrique à inertie 1000 W | 1 |
| Sonnerie | 1 |
| WC petite taille | 1 |
Lien vers ce plan
Lien pour partager le plan Projet aménagement grenier
Image du plan
Copier et coller le code ci dessous
Partagez ce plan
Vous aimez ce plan ?
Cliquez sur J'aime et gagnez des fonctionnalités