Salle de Bain Clermont Sol4 Stephane modifie3
Plan de

Description
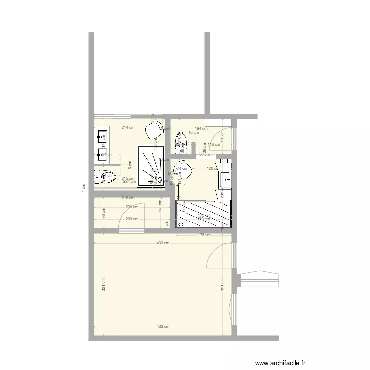
Voir si cela passe au niveau de la dimension du WC sans abatre de cloison...
Détails du plan
- Plan commencé le 21/01/2021 à 14:48 par Archinizou
- Modifié le 21/01/2021 à 14:48 par Archinizou
- Partage : Utilisation
Mots clés
Liste des pièces
Aucune pièce n'a été créé sur ce plan.
Liste des objets
| Nom de l'objet | Nombre |
|---|---|
| Cabine douche | 1 |
| Chaise | 2 |
| Etagère redimenssionnable | 1 |
| Meuble 1 lavabo integré | 1 |
| Meuble 2 lavabos | 1 |
| Meuble colonne | 2 |
| Radiateur à inertie 1000W | 1 |
| Receveur douche | 1 |
| Sèche-serviettes électrique à inertie 1000 W | 1 |
| WC standard | 2 |
Lien vers ce plan
Lien pour partager le plan Salle de Bain Clermont Sol4 Stephane modifie3
Image du plan
Copier et coller le code ci dessous
Partagez ce plan
Vous aimez ce plan ?
Cliquez sur J'aime et gagnez des fonctionnalités