alto thonon
Plan de

Détails du plan
- Plan commencé le 15/07/2025 à 16:25 par simon74
- Modifié le 16/07/2025 à 07:21 par simon74
- Partage : Utilisation
Mots clés
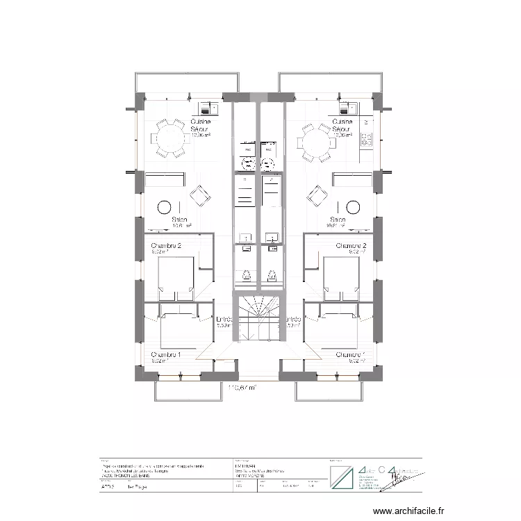
Liste des pièces
Aucune pièce n'a été créé sur ce plan.
Liste des objets
| Nom de l'objet | Nombre |
|---|---|
| Chaudière à fioul | 2 |
| Chauffe eau | 2 |
| Lave main | 2 |
| Meuble 1 lavabo integré | 2 |
| Receveur douche | 2 |
| Rectangle | 1 |
| WC suspendu | 2 |
Lien vers ce plan
Lien pour partager le plan alto thonon
Image du plan
Copier et coller le code ci dessous
Partagez ce plan
Vous aimez ce plan ?
Cliquez sur J'aime et gagnez des fonctionnalités