SDB2
Plan de

Description
SDB
Détails du plan
- Plan commencé le 28/05/2019 à 10:18 par jpdan
- Modifié le 11/06/2019 à 14:19 par jpdan
- Partage : Utilisation
Mots clés
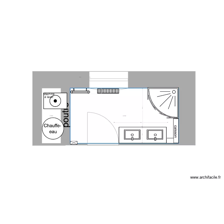
Liste des pièces
Aucune pièce n'a été créé sur ce plan.
Liste des objets
| Nom de l'objet | Nombre |
|---|---|
| Texte | 3 |
| Cabine douche quart de cercle | 1 |
| Chauffe eau | 1 |
| Convecteur électrique | 1 |
| Lave linge ouverture dessus | 1 |
| Meuble 2 lavabos | 1 |
| Sèche-serviettes électrique à inertie 1000 W | 1 |
| Tableau électrique | 1 |
Lien vers ce plan
Lien pour partager le plan SDB2
Image du plan
Copier et coller le code ci dessous
Partagez ce plan
Vous aimez ce plan ?
Cliquez sur J'aime et gagnez des fonctionnalités