Antoin Weemael Abri du Jardin
Plan de

Détails du plan
- Plan commencé le 07/06/2021 à 15:46 par brus.sprl.gmail.com
- Modifié le 11/06/2021 à 12:03 par brus.sprl.gmail.com
- Partage : Utilisation
Mots clés
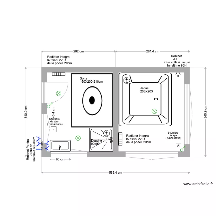
Liste des pièces
Aucune pièce n'a été créé sur ce plan.
Liste des objets
| Nom de l'objet | Nombre |
|---|---|
| Texte | 9 |
| Baignoire îlot rectangulaire | 1 |
| Eclairage plafond | 3 |
| Interrupteur bipolaire | 2 |
| Lave linge hublot | 3 |
| Meuble 1 lavabo integré | 1 |
| Prise | 4 |
| Radiateur à inertie 1000W | 2 |
| Receveur douche | 1 |
| Robinet douche/bain | 2 |
| VMC bouche d'extraction | 2 |
Lien vers ce plan
Lien pour partager le plan Antoin Weemael Abri du Jardin
Image du plan
Copier et coller le code ci dessous
Partagez ce plan
Vous aimez ce plan ?
Cliquez sur J'aime et gagnez des fonctionnalités