Dependance Mel&Alex
Plan de 0 pièce et 0 m2.

Détails du plan
- Plan commencé le 14/01/2026 à 18:29 par Decorista
- Modifié le 20/01/2026 à 15:59 par Decorista
- Partage : Utilisation
Mots clés
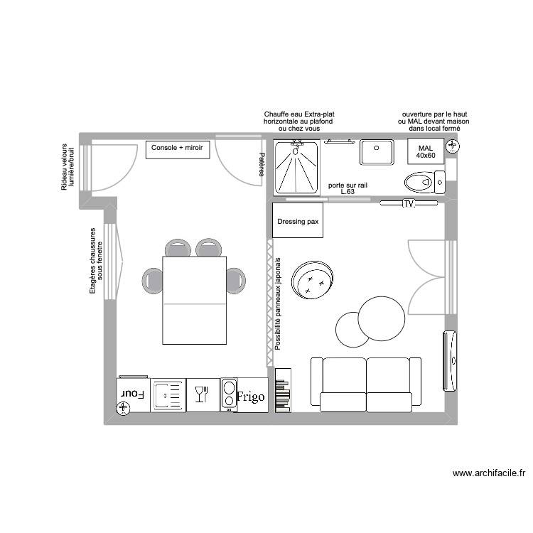
Liste des pièces
Aucune pièce n'a été créé sur ce plan.
Liste des objets
| Nom de l'objet | Nombre |
|---|---|
| Texte | 10 |
| Bar | 3 |
| Bibliothèque | 1 |
| Canapé 2 places | 1 |
| Cercle | 2 |
| Climatiseur Split interieur | 1 |
| Évier 1 bac avec meuble | 1 |
| Evier 1 vasque | 1 |
| Fauteuil crapaud | 1 |
| Four | 1 |
| Ilot central | 1 |
| Lave vaisselle 12 couverts | 1 |
| Plaque électrique 2 foyers | 1 |
| Receveur douche | 1 |
| Réfrigérateur | 1 |
| Robinet douche/bain | 1 |
| Sèche-serviettes électrique à inertie 1000 W | 1 |
| Tabouret de bar | 4 |
| Téléviseur | 1 |
| VMC bouche d'extraction | 2 |
| WC standard | 1 |
Lien vers ce plan
Lien pour partager le plan Dependance Mel&Alex
Image du plan
Copier et coller le code ci dessous
Partagez ce plan
Vous aimez ce plan ?
Cliquez sur J'aime et gagnez des fonctionnalités