POHU1
Plan de

Détails du plan
- Plan commencé le 14/03/2022 à 21:40 par supertiti
- Modifié le 14/03/2022 à 21:40 par supertiti
- Partage : Utilisation
Mots clés
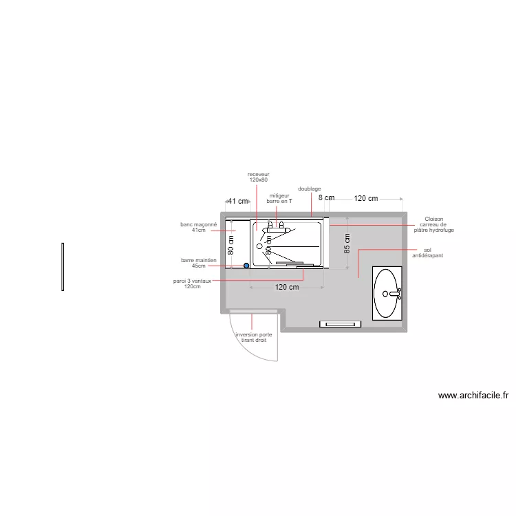
Liste des pièces
Aucune pièce n'a été créé sur ce plan.
Liste des objets
| Nom de l'objet | Nombre |
|---|---|
| Texte | 9 |
| barre verticale | 1 |
| Doublage | 1 |
| Meuble lavabo intégré | 1 |
| mitigeur douche thermo | 1 |
| paroi | 4 |
| radiateur | 1 |
| Receveur douche | 1 |
Lien vers ce plan
Lien pour partager le plan POHU1
Image du plan
Copier et coller le code ci dessous
Partagez ce plan
Vous aimez ce plan ?
Cliquez sur J'aime et gagnez des fonctionnalités