400AV - Salle simulateur DXF
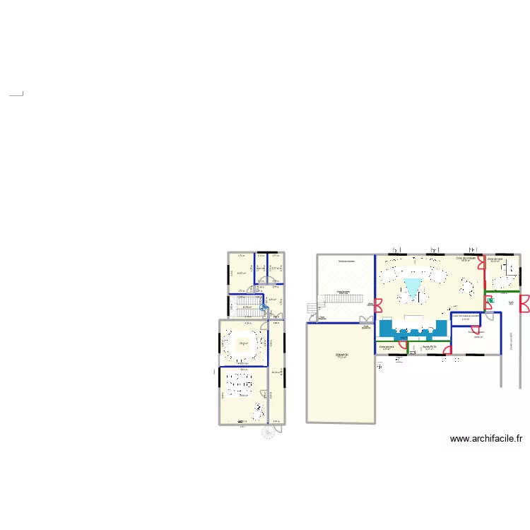
Plan de 16 et 383 m²

Détails du plan
- Plan commencé le 17/03/2026 à 13:34 par FTApourTA
- Modifié le 17/03/2026 à 15:55 par FTApourTA
- Partage : Utilisation
Mots clés
Liste des pièces
- SEMAFOR
- Accès PL25
- Zone de repli
- Zone de conduite
- Zone serveur
Liste des objets
| Nom de l'objet | Nombre |
|---|---|
| Texte | 9 |
| Armoire | 5 |
| Bar | 4 |
| Bureau rectangulaire 180 X 80 cm | 1 |
| Chaise | 4 |
| Chaise | 24 |
| Climatiseur bloc exterieur | 7 |
| Escalier colimaçon | 1 |
| Escalier demi tournant | 1 |
| Escalier droit | 2 |
| Escalier quart tournant | 1 |
| Fauteuil de bureau | 1 |
| Issue et sortie de secours | 1 |
| Poteau bois | 1 |
| Pupitre Kz | 1 |
| Table 4 pers. 90 x 90 cm | 1 |
| Téléviseur | 6 |
Lien vers ce plan
Lien pour partager le plan 400AV - Salle simulateur DXF
Image du plan
Copier et coller le code ci dessous
Partagez ce plan
Vous aimez ce plan ?
Cliquez sur J'aime et gagnez des fonctionnalités
Plans de 16 pièces
Voir tout les plans de 16 pièces
Plans de 370 à 390 m2
Voir tout les plans de 370 à 390 m2