EXE T2 La Seyne gai versant
Plan de

Détails du plan
- Plan commencé le 14/05/2025 à 11:47 par neji94
- Modifié le 14/05/2025 à 12:48 par neji94
- Partage : Utilisation
Mots clés
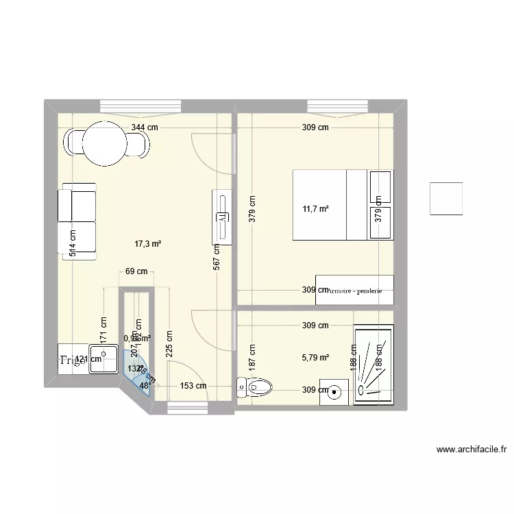
Liste des pièces
Aucune pièce n'a été créé sur ce plan.
Liste des objets
| Nom de l'objet | Nombre |
|---|---|
| Armoire - penderie 150 cm | 1 |
| Canapé 2 places | 1 |
| Chaise | 2 |
| Evier 1 vasque | 1 |
| Hotte murale | 1 |
| Lave linge hublot | 1 |
| Lit queen size | 1 |
| Receveur douche | 1 |
| Réfrigérateur | 1 |
| Téléviseur avec meuble bas | 1 |
| WC standard | 1 |
Lien vers ce plan
Lien pour partager le plan EXE T2 La Seyne gai versant
Image du plan
Copier et coller le code ci dessous
Partagez ce plan
Vous aimez ce plan ?
Cliquez sur J'aime et gagnez des fonctionnalités