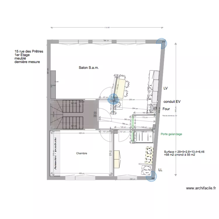
RDC rectifié le reste HS
Plan de

Description
Base des apps. Base pour cuisine et SDB ameublement
Détails du plan
- Plan commencé le 11/04/2017 à 15:50 par Regissime
- Modifié le 21/04/2017 à 23:16 par Regissime
- Partage : Lecture
Mots clés
Liste des pièces
Aucune pièce n'a été créé sur ce plan.
Liste des objets
Lien vers ce plan
Lien pour partager le plan RDC rectifié le reste HS
Image du plan
Copier et coller le code ci dessous
Partagez ce plan
Vous aimez ce plan ?
Cliquez sur J'aime et gagnez des fonctionnalités