abc10
Plan de

Détails du plan
- Plan commencé le 06/04/2023 à 22:39 par priorge
- Modifié le 06/04/2023 à 22:39 par priorge
- Partage : Utilisation
Mots clés
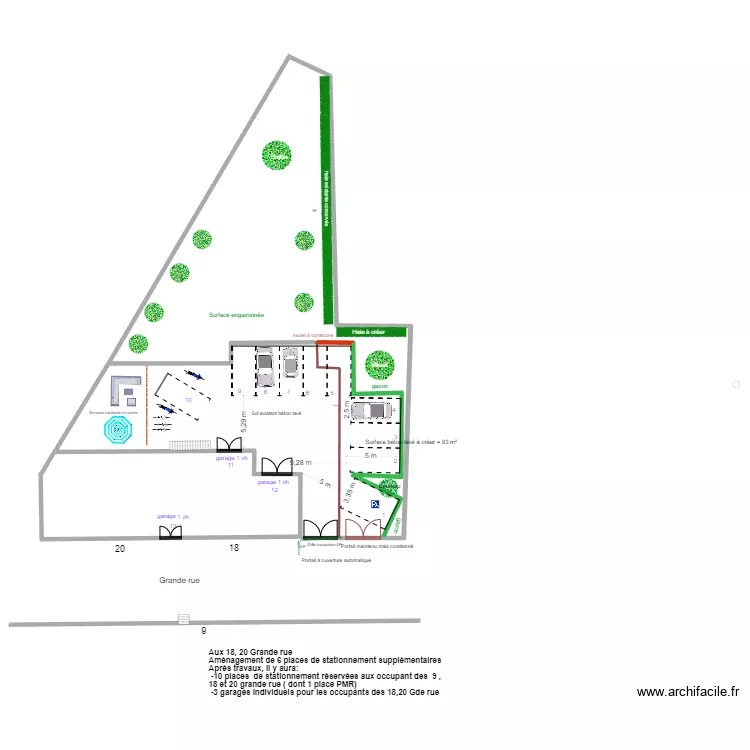
Liste des pièces
Aucune pièce n'a été créé sur ce plan.
Liste des objets
| Nom de l'objet | Nombre |
|---|---|
| Texte | 39 |
| Arbre fruitier - Pommier | 6 |
| Arbre moyen | 2 |
| Arbre Petit - Ornement | 1 |
| Barrière de jardin | 1 |
| Cercle | 1 |
| Escalier droit | 2 |
| Haie | 4 |
| Moto | 2 |
| Parasol turquoise | 1 |
| Parking | 4 |
| Parking PMR | 1 |
| Salon de jardin en résine 10 places | 1 |
| Velo ville | 3 |
| Voiture familiale ou berline | 2 |
| Voiture petite citadine | 1 |
Lien vers ce plan
Lien pour partager le plan abc10
Image du plan
Copier et coller le code ci dessous
Partagez ce plan
Vous aimez ce plan ?
Cliquez sur J'aime et gagnez des fonctionnalités