Salle de Bain Clermont V2
Plan de

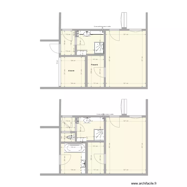
Description
Voir si cela passe au niveau de la dimension du WC sans abatre de cloison...
Détails du plan
- Plan commencé le 09/07/2020 à 11:16 par Archinizou
- Modifié le 09/07/2020 à 11:38 par Archinizou
- Partage : Utilisation
Mots clés
Liste des pièces
Aucune pièce n'a été créé sur ce plan.
Liste des objets
| Nom de l'objet | Nombre |
|---|---|
| Texte | 4 |
| Baignoire rectangulaire (encastrable) | 1 |
| Cercle | 2 |
| Flêche | 2 |
| Meuble colonne | 1 |
| Meuble lavabo intégré | 3 |
| Meuble tiroir | 7 |
| Radiateur en fonte 2350 W ( 156 W / élément ) | 2 |
| Receveur douche | 2 |
| WC petite taille | 1 |
Lien vers ce plan
Lien pour partager le plan Salle de Bain Clermont V2
Image du plan
Copier et coller le code ci dessous
Partagez ce plan
Vous aimez ce plan ?
Cliquez sur J'aime et gagnez des fonctionnalités