LESSINES Chemin Mons a Gand REVU 190922
Plan de

Détails du plan
- Plan commencé le 19/09/2022 à 14:39 par ANCOR60
- Modifié le 19/09/2022 à 16:27 par ANCOR60
- Partage : Utilisation
Mots clés
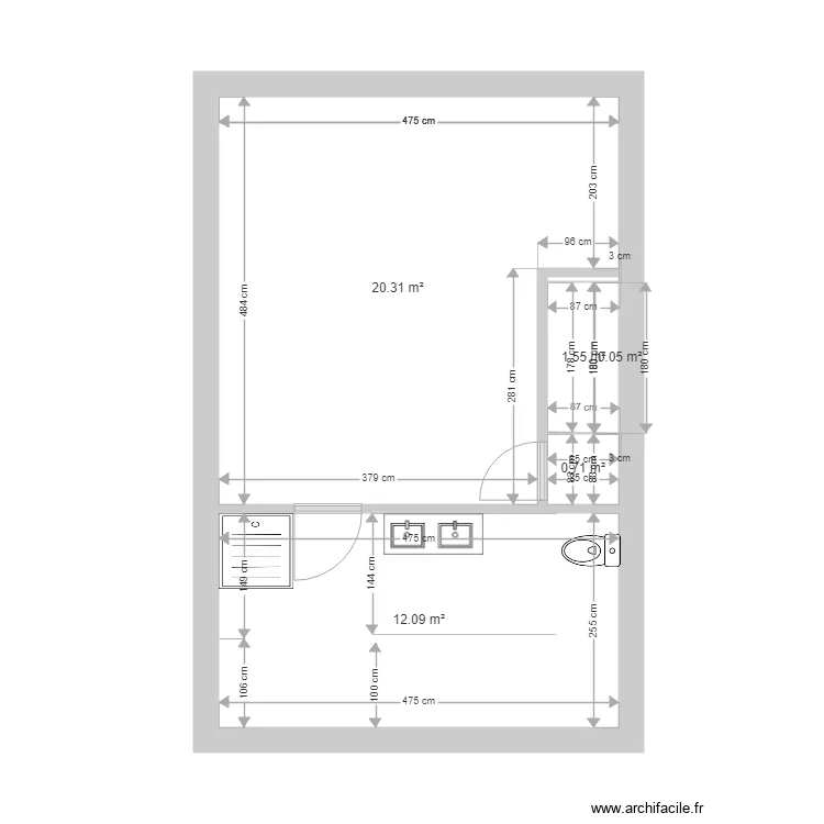
Liste des pièces
Aucune pièce n'a été créé sur ce plan.
Liste des objets
| Nom de l'objet | Nombre |
|---|---|
| Baignoire rectangulaire | 1 |
| Escalier droit | 4 |
| Évier 2 bacs | 1 |
| Fenêtre de toit | 1 |
| Meuble 2 lavabos | 2 |
| Plan de travail | 1 |
| Plaque induction 4 foyers | 1 |
| Receveur douche | 1 |
| WC standard | 3 |
Lien vers ce plan
Lien pour partager le plan LESSINES Chemin Mons a Gand REVU 190922
Image du plan
Copier et coller le code ci dessous
Partagez ce plan
Vous aimez ce plan ?
Cliquez sur J'aime et gagnez des fonctionnalités