BEAUVAIS BOIS D AMONT
Plan de

Description
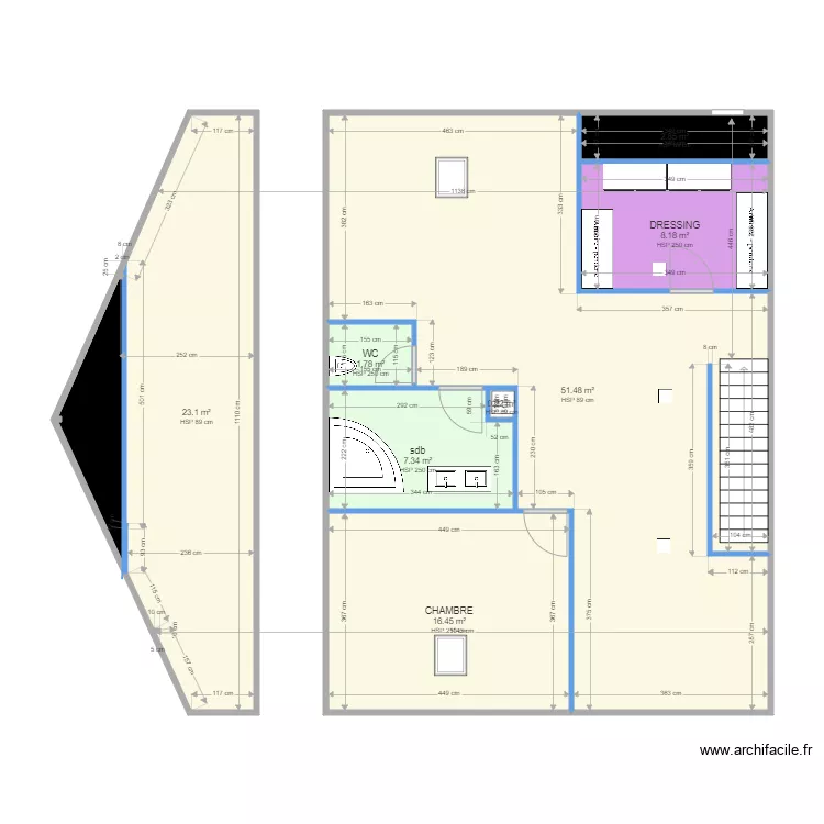
AMENAGEMEENT DES COMBLES
Détails du plan
- Plan commencé le 07/09/2022 à 15:31 par anthony.mace.lamaisondestravaux.com
- Modifié le 09/09/2022 à 09:33 par anthony.mace.lamaisondestravaux.com
- Partage : Utilisation
Mots clés
Liste des pièces
Aucune pièce n'a été créé sur ce plan.
Liste des objets
| Nom de l'objet | Nombre |
|---|---|
| Armoire - penderie 150 cm | 2 |
| Baignoire d'angle | 1 |
| Commode tiroirs 120 x 50 cm | 2 |
| Escalier droit | 1 |
| Fenêtre 1 vantail | 2 |
| Meuble 2 lavabos | 1 |
| Rectangle | 1 |
| WC suspendu | 1 |
Lien vers ce plan
Lien pour partager le plan BEAUVAIS BOIS D AMONT
Image du plan
Copier et coller le code ci dessous
Partagez ce plan
Vous aimez ce plan ?
Cliquez sur J'aime et gagnez des fonctionnalités