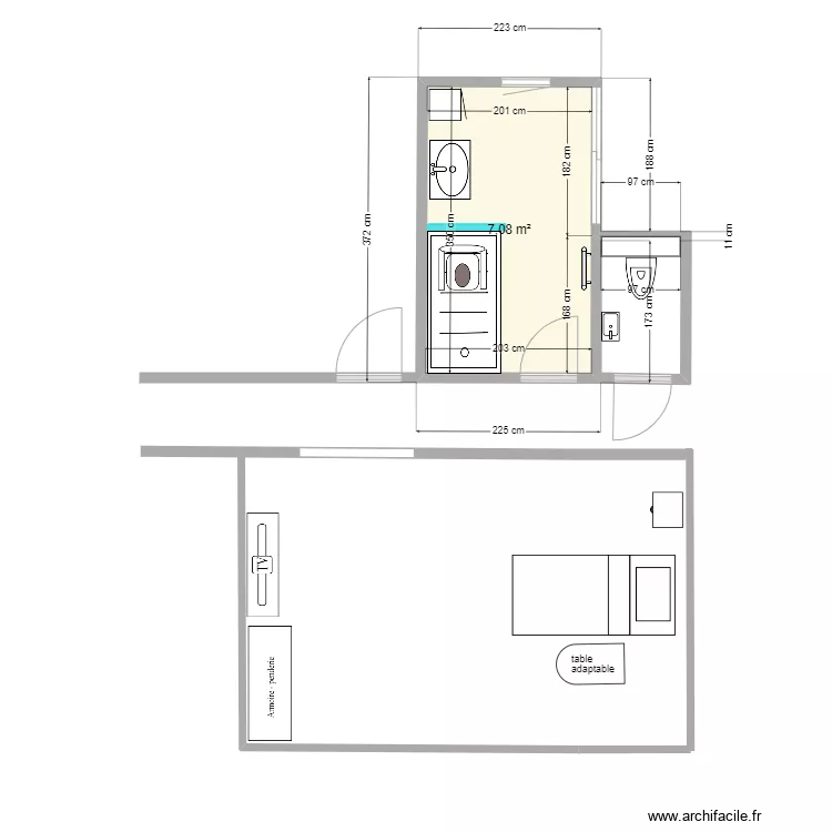
SDB MACK. Armelle
Plan de

Détails du plan
- Plan commencé le 16/05/2023 à 16:53 par crrf
- Modifié le 02/06/2023 à 09:58 par crrf
- Partage : Utilisation
Mots clés
Liste des pièces
Aucune pièce n'a été créé sur ce plan.
Liste des objets
| Nom de l'objet | Nombre |
|---|---|
| Texte | 1 |
| Armoire - penderie 200 cm | 1 |
| chaise percée | 1 |
| Lave main | 1 |
| Lit 1 pers | 1 |
| Meuble colonne | 1 |
| Meuble lavabo intégré | 1 |
| Plan de travail | 1 |
| Plan de travail bout arrondi | 1 |
| Receveur douche | 1 |
| Sèche-serviettes électrique à inertie 1000 W | 1 |
| Table de chevet | 1 |
| Téléviseur avec meuble bas | 1 |
| WC suspendu | 1 |
Lien vers ce plan
Lien pour partager le plan SDB MACK. Armelle
Image du plan
Copier et coller le code ci dessous
Partagez ce plan
Vous aimez ce plan ?
Cliquez sur J'aime et gagnez des fonctionnalités