PAVY COULAGE
Plan de

Détails du plan
- Plan commencé le 12/09/2025 à 17:24 par SARL ROIRAND
- Modifié le 25/11/2025 à 16:44 par SARL ROIRAND
- Partage : Utilisation
Mots clés
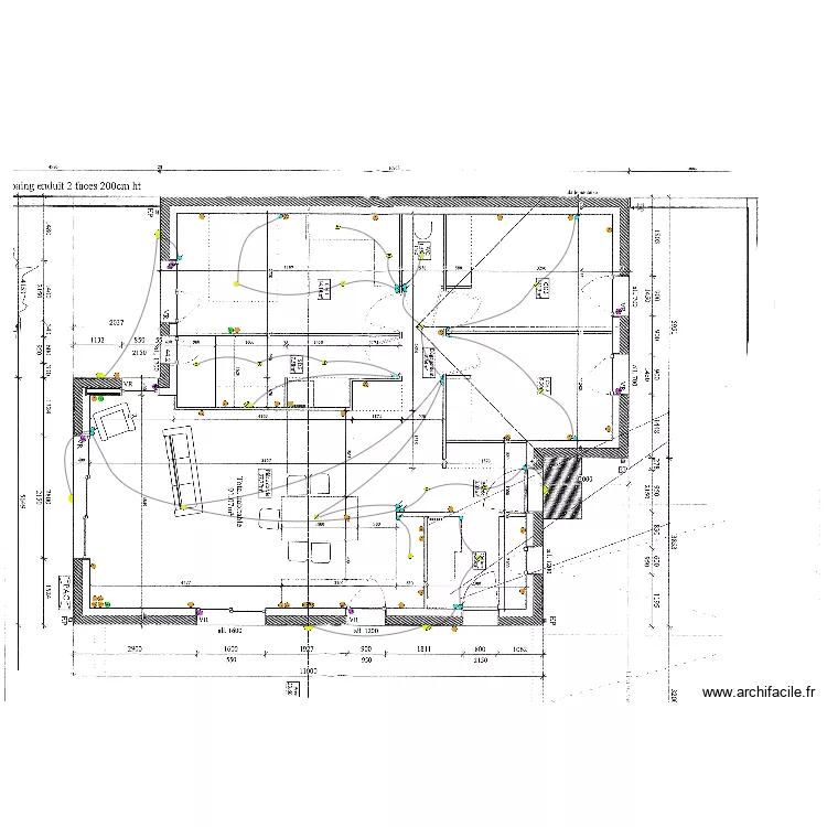
Liste des pièces
Aucune pièce n'a été créé sur ce plan.
Liste des objets
| Nom de l'objet | Nombre |
|---|---|
| Collecteur 6 départs | 2 |
| Eclairage applique | 7 |
| Eclairage plafond | 10 |
| Eclairage spot | 7 |
| Interrupteur | 25 |
| Prise | 34 |
| Prise four | 1 |
| Prise HOTTE | 1 |
| Prise lave linge | 1 |
| Prise lave vaisselle | 1 |
| Prise plaque de cuisson | 1 |
| Prise réseau RJ45 | 3 |
| Prise volet roulant | 7 |
Lien vers ce plan
Lien pour partager le plan PAVY COULAGE
Image du plan
Copier et coller le code ci dessous
Partagez ce plan
Vous aimez ce plan ?
Cliquez sur J'aime et gagnez des fonctionnalités