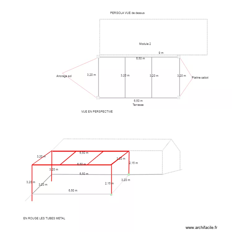
Pergola
Plan de

Détails du plan
- Plan commencé le 14/01/2019 à 18:25 par meco
- Modifié le 14/01/2019 à 19:15 par meco
- Partage : Utilisation
Mots clés
Liste des pièces
Aucune pièce n'a été créé sur ce plan.
Liste des objets
| Nom de l'objet | Nombre |
|---|---|
| Texte | 26 |
| Interrupteur bouton poussoir avec voyant | 2 |
Lien vers ce plan
Lien pour partager le plan Pergola
Image du plan
Copier et coller le code ci dessous
Partagez ce plan
Vous aimez ce plan ?
Cliquez sur J'aime et gagnez des fonctionnalités