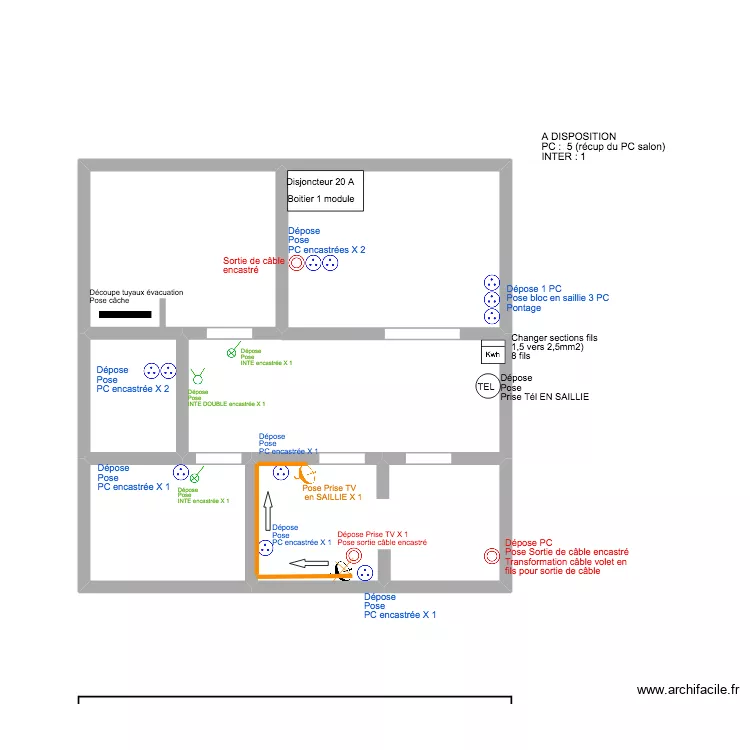
appartement aubagne
Plan de

Détails du plan
- Plan commencé le 22/03/2022 à 10:49 par amicalelectricit2
- Modifié le 22/03/2022 à 11:32 par amicalelectricit2
- Partage : Utilisation
Mots clés
Liste des pièces
Aucune pièce n'a été créé sur ce plan.
Liste des objets
| Nom de l'objet | Nombre |
|---|---|
| Texte | 21 |
| Cercle | 1 |
| Compteur électrique | 1 |
| Flêche | 2 |
| Interrupteur avec voyant | 2 |
| Interrupteur bouton poussoir | 3 |
| Interrupteur double | 1 |
| Parabole | 2 |
| Prise | 11 |
| Rectangle | 1 |
Lien vers ce plan
Lien pour partager le plan appartement aubagne
Image du plan
Copier et coller le code ci dessous
Partagez ce plan
Vous aimez ce plan ?
Cliquez sur J'aime et gagnez des fonctionnalités