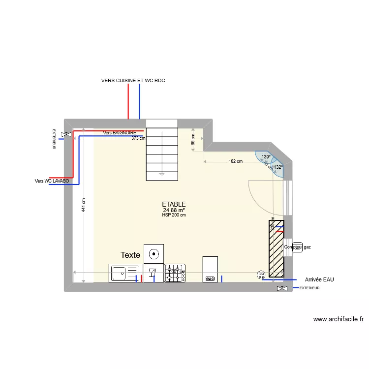
ETABLE EAU CHAUFFAGE
Plan de

Description
Plan eau et chauffage
Détails du plan
- Plan commencé le 20/09/2021 à 14:22 par fabdvs
- Modifié le 09/03/2022 à 19:17 par fabdvs
- Partage : Utilisation
Mots clés
Liste des pièces
Aucune pièce n'a été créé sur ce plan.
Liste des objets
| Nom de l'objet | Nombre |
|---|---|
| Texte | 7 |
| Chaudière à Gaz | 1 |
| Compteur d'eau | 1 |
| Compteur gaz | 1 |
| Escalier droit | 1 |
| Évier 1 bac avec meuble | 1 |
| Lave linge hublot | 1 |
| Lave vaisselle 12 couverts | 1 |
| Plaque gaz | 1 |
| Vanne manuelle | 2 |
Lien vers ce plan
Lien pour partager le plan ETABLE EAU CHAUFFAGE
Image du plan
Copier et coller le code ci dessous
Partagez ce plan
Vous aimez ce plan ?
Cliquez sur J'aime et gagnez des fonctionnalités