LEMAIRE
Plan de

Détails du plan
- Plan commencé le 27/01/2021 à 16:53 par supertiti
- Modifié le 27/01/2021 à 16:53 par supertiti
- Partage : Utilisation
Mots clés
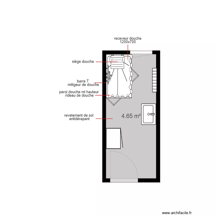
Liste des pièces
Aucune pièce n'a été créé sur ce plan.
Liste des objets
| Nom de l'objet | Nombre |
|---|---|
| Texte | 5 |
| Meuble 1 lavabo integré | 1 |
| Meuble colonne | 1 |
| paroi | 5 |
| Radiateur à inertie 1500W | 1 |
| Receveur douche | 1 |
| rideau de douche | 2 |
| Robinet douche/bain | 1 |
| Sèche-serviettes électrique à inertie 1000 W | 1 |
| siege douche dossier et accoudoirs | 1 |
Lien vers ce plan
Lien pour partager le plan LEMAIRE
Image du plan
Copier et coller le code ci dessous
Partagez ce plan
Vous aimez ce plan ?
Cliquez sur J'aime et gagnez des fonctionnalités