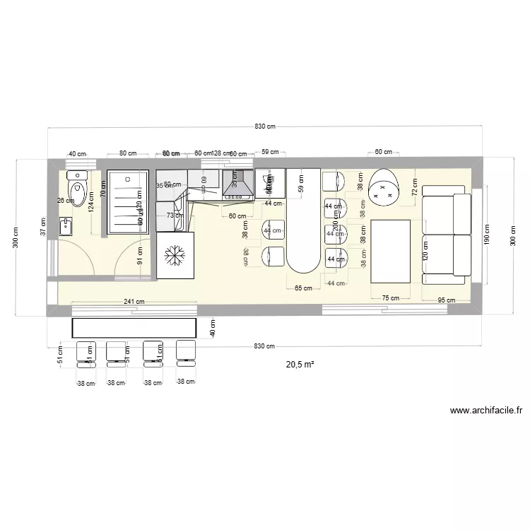
MICHEL POOL HOUSE 8,30 X 3 = 24,90 M2 (25)..
Plan de

Détails du plan
- Plan commencé le 11/04/2023 à 07:03 par L2M CONCEPT
- Modifié le 11/04/2023 à 07:03 par L2M CONCEPT
- Partage : Utilisation
Mots clés
Liste des pièces
Aucune pièce n'a été créé sur ce plan.
Liste des objets
Lien vers ce plan
Lien pour partager le plan MICHEL POOL HOUSE 8,30 X 3 = 24,90 M2 (25)..
Image du plan
Copier et coller le code ci dessous
Partagez ce plan
Vous aimez ce plan ?
Cliquez sur J'aime et gagnez des fonctionnalités