CCT VL David Vincent
Plan de

Détails du plan
- Plan commencé le 25/07/2021 à 01:32 par protechnologies
- Modifié le 25/07/2021 à 01:32 par protechnologies
- Partage : Utilisation
Mots clés
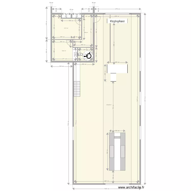
Liste des pièces
Aucune pièce n'a été créé sur ce plan.
Liste des objets
| Nom de l'objet | Nombre |
|---|---|
| Aire de rotation d'un fauteuil roulant | 1 |
| Banc de freinage muller | 1 |
| Bar | 1 |
| Escalier droit | 1 |
| fourreau | 1 |
| Meuble 1 lavabo integré | 1 |
| Rectangle | 8 |
| Réglopahre | 1 |
| WC standard | 1 |
Lien vers ce plan
Lien pour partager le plan CCT VL David Vincent
Image du plan
Copier et coller le code ci dessous
Partagez ce plan
Vous aimez ce plan ?
Cliquez sur J'aime et gagnez des fonctionnalités